PROJETO DE CASA PAVIMENTO TÉRREO, PRAIA, CONDOMÍNIO, SÍTIO, CHÁCRA
PROJETO ARQUITETÔNICO PRONTO AUTOCAD ARQUIVOS EDITÁVEIS DWG, PDF, JPG
FORMA DE ENVIO ARQUIVOS DIGITAL POR E-MAIL
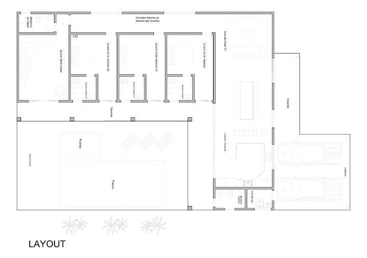
CASA TÉRREO POSUI:
3 SUITES COM PORTA DE ACESSO A VARANDA LATERAL
SALA SOCIAL
COZINHA COM ILHA E BANCADA
LAVANDERIA
DESPENSA
3 VAGAS DE CARRO DESCUBERTAS
VARANDA PARA REDES
ÁREA GOURMET: CHURRASQUEIRA, ESPAÇO PARA JOGOS DE SINUCA E OUTROS,
IMAGENS EM D3 JPG ILUSTRATIVAS
PROJETOS:
PROJETO ARQUITETÔNICO
PROJETO ESTRUTURAL COM LISTA DE MATERIAIS
PROJETO ELETRICO COM LISTA DE MATERIAIS
PROJETO HIDROSANITÁRIO, ÁGUA, PLUVIAL, ESGOTO, FOSSA SÉPTICA, COM LISTA DE MATERIAIS











